Home & Land at The View Cranbrook!
- Eagle Homes
- Homes
- Home & Land at The View Cranbrook!
Home & Land at The View Cranbrook!
Please note that this home and land package is now SOLD to very nice people.
Call the Cranbrook office to find out more about the newest 2023 phase that is now open!
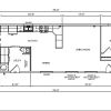
This wonderful home is full of appeal! Located in The View, this property overlooks the children’s playground and green space nearby and beautiful Baker & Cranbrook Mountains in the distance. A wonderful 3 bedroom, 2 bathroom home awaits your family in this well situated subdivision, locates minutes away from downtown Cranbrook.
Standing at just over 1200 square feet, this 16’ x 76’ home is designed to support you and your family’s lifestyle with a large and open kitchen, living room and dining room space. A spacious primary bedroom, complete with an ensuite washroom and walk in closet, adorns one end of the home while two carpeted bedrooms and a bathroom can be found at the other end of this home. The ensuite shower features a Duma shower with full height glass enclosure in a lovely Smoked Steel color.
Grey cabinets and tile pair nicely with the black anthracite sink and black matte hardware throughout. All 4 appliances are white. The fridge is a french door freezer fridge with an ice maker. The range is an upgraded cerantop style. A large Pentaview dormer in the living room, along with the Stardust White panels found throughout, open up the space and give light. With its stylish finishes this home stands out.
This home is ready for possession now so don’t delay; call our Cranbrook office for more information or to schedule an appointment today!
Square Feet 1216
Bedrooms 3
Bathrooms 2.0
Stock # 1821
Located in Cranbrook, BC
Price $399,000.00
VISION STATEMENT
To provide the best customer experience through innovation and consistent adaptation; to develop quality, environmentally-friendly homes while positively impacting our communities through supporting and giving back locally, one home at a time.
Developments
Locations
Salmon Arm, BC
1190 51 Street NE
Salmon Arm, BC
250-833-4728
Kamloops, BC
7510 Dallas Drive
Kamloops, BC
250-573-2278
Cranbrook, BC
2232 Cranbrook Street N.
Cranbrook, BC
250-489-1230
Castlegar, BC
4430 Minto Road,
Castlegar, BC
250-365-2121
