Iron Ore Mansura
- Eagle Homes
- Homes
- Iron Ore Mansura
Iron Ore Mansura
We have a brand new show home for sale in Castlegar.
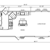
Upgraded Iron Ore vinyl siding covers the exterior, contrasted by stark white soffit and fascia, of this 1216 sq ft home. There are 3 bedrooms and 2 full bathrooms. A trendy barn door leads into the spacious master ensuite bathroom that has a large soaker tub with a giant opaque window above offering tons of natural light while maintaining privacy, and a separate shower stall. This home was built with a high snow load of 111psf, which allows the home to be placed in a town or district with a higher snow load than average. Upgraded & low-cost LED lighting has been added throughout the home, which includes under cabinet lighting and an auto-light in the master closet. Off of the dining room is a garden door for those warm summer evenings and entertaining. The kitchen features a stainless steel chef's sink, full height backsplash tile, soft-closing drawers and cabinets, ample LED lighting and an upgraded faucet. The oven is a self-clean and the fridge is a double-door.
Call / Click today to see for yourself!
Square Feet 1216
Bedrooms 3
Bathrooms 2.0
VISION STATEMENT
To provide the best customer experience through innovation and consistent adaptation; to develop quality, environmentally-friendly homes while positively impacting our communities through supporting and giving back locally, one home at a time.
Developments
Locations
Salmon Arm, BC
1190 51 Street NE
Salmon Arm, BC
250-833-4728
Kamloops, BC
7510 Dallas Drive
Kamloops, BC
250-573-2278
Cranbrook, BC
2232 Cranbrook Street N.
Cranbrook, BC
250-489-1230
Castlegar, BC
4430 Minto Road,
Castlegar, BC
250-365-2121
